
仙台駅前貸会議室は仙台駅真正面、ヒューモスファイヴビルにございます。会社説明会や面接、セミナー、会議、スクールなど様々な用途にご利用頂けます。
![]()

仙台駅徒歩1分
仙台駅前貸会議室は仙台駅とペディストリアンデッキで直結したヒューモスファイヴビル内にございます。周辺環境も充実しており、ランチタイムや買物に便利です。また周辺には宿泊施設も多いので大変便利です。
1F 貸会議室 大(仙台駅前ホール)
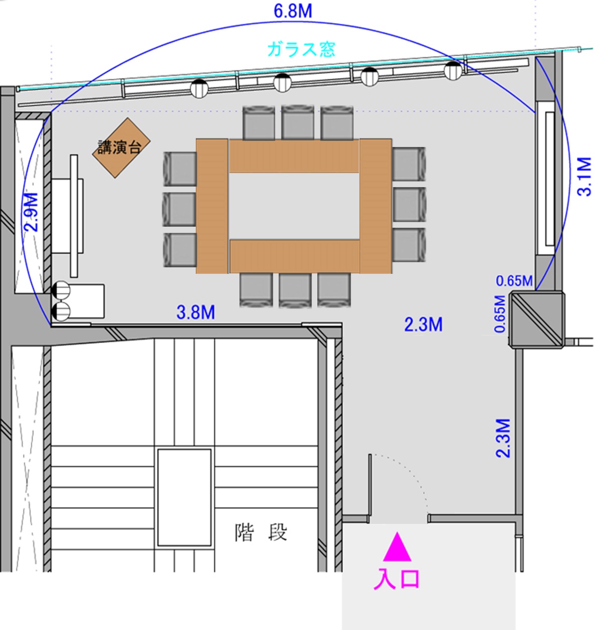
9F 貸会議室 小
ヒューモスサロン
貸会議室をご利用の方は9Fの会員制ヒューモスサロンをご利用時間1時間前より無料でご利用いただけます。
給茶機(コーヒー、お茶、紅茶)、新聞、雑誌をご利用いただけます。


※テナント会員様と共同利用となります。(貸切はできません)
※お食事はできません。
PHOTO
![]() 1F 受付カウンター |
![]() 喫煙所(9F) |
![]() 化粧室・トイレ |
![]() 自動販売機・コピー機 |
建物概要
| 建物名 | ヒューモスファイヴ |
|---|---|
| 所在地 | 仙台市青葉区中央1丁目10番1号 |
| 構造 | 鉄骨鉄筋コンクリート造(地下2階/地上9階/塔屋3階) |
| 面積 | 敷地面積548.02㎡/延床面積6172.35㎡ |
| 設計/施工 | 設計:円堂建築設計事務所/ 施工:鹿島建設株式会社 |
| 竣工 | 昭和41年6月(平成8年10月設備改装)(平成17年12月耐震補強) |
| 空調設備 | 空冷ヒートポンプ型個別空調機(残業時にも個別の冷暖房運転操作) |
| 換気設備 | 機械給気+自然換気で必要換気量を供給 |
| エレベーター | 乗用2基、人荷用1基 |
| 貸室標準仕上 | 床-タイルカーペット、壁-ビニールクロス、天上-モルタル下地塗装 |
| その他 | 安心の24時間警備勤務体制、光ファイバー導入済み |




























